Διαμέρισμα 63 τ.μ. Καλλιθέα, Αλεξανδρούπολης
Επισκόπηση
- Διαμέρισμα
- 63 τ.μ
- 1
- 1
- 1
- 1
- Ναι
- 2026
- papandreou.a2
Περιγραφή
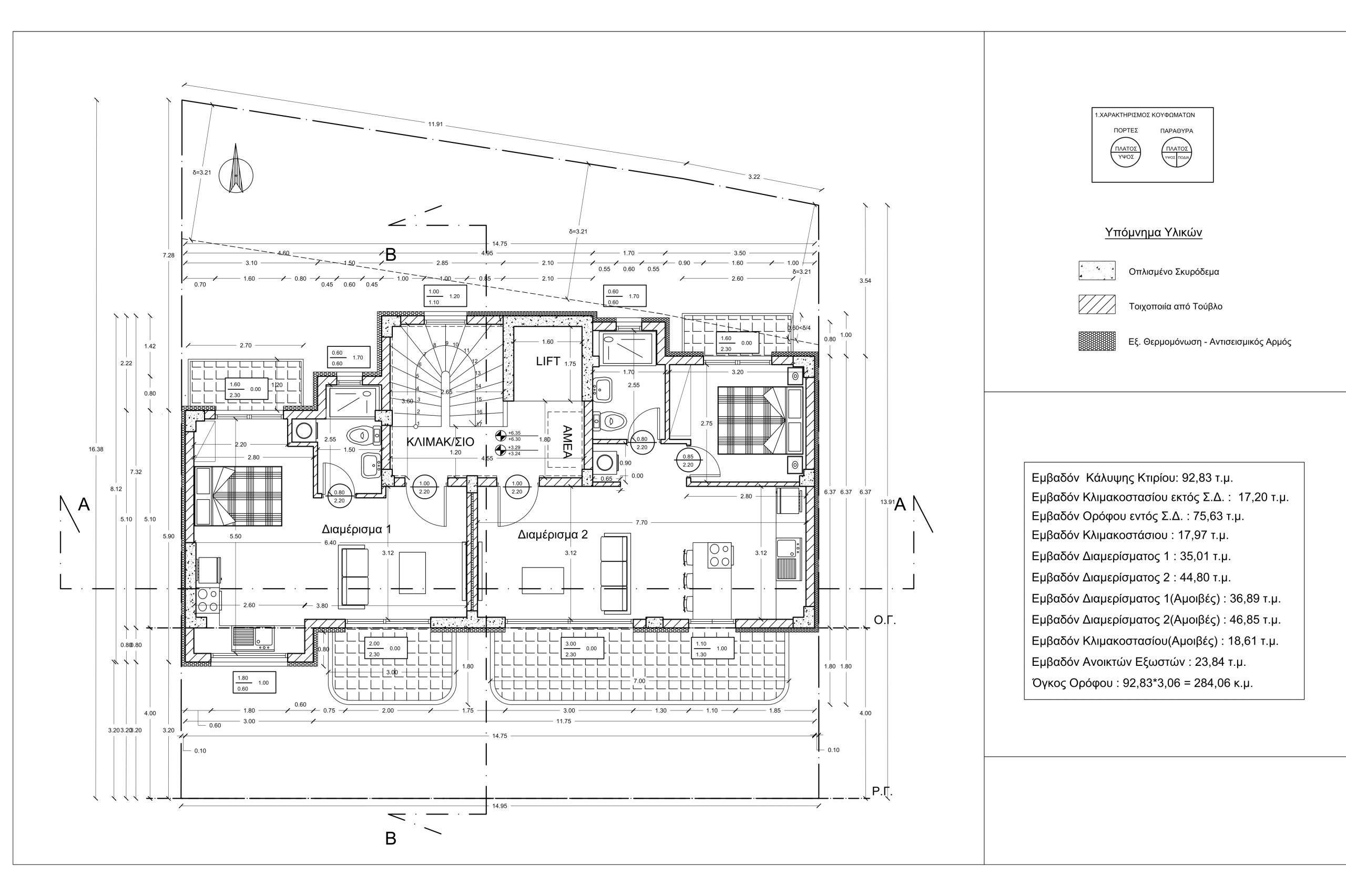
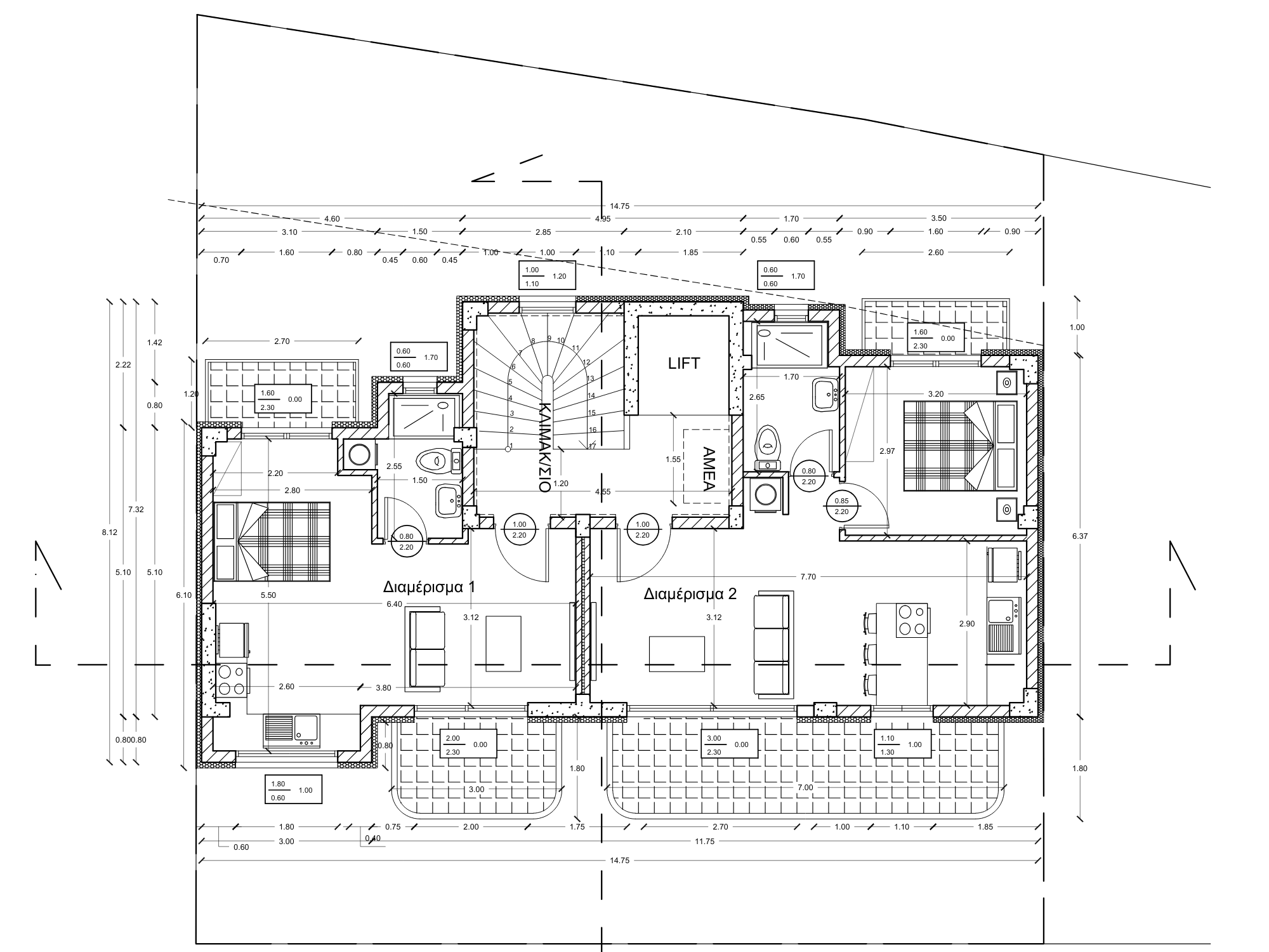
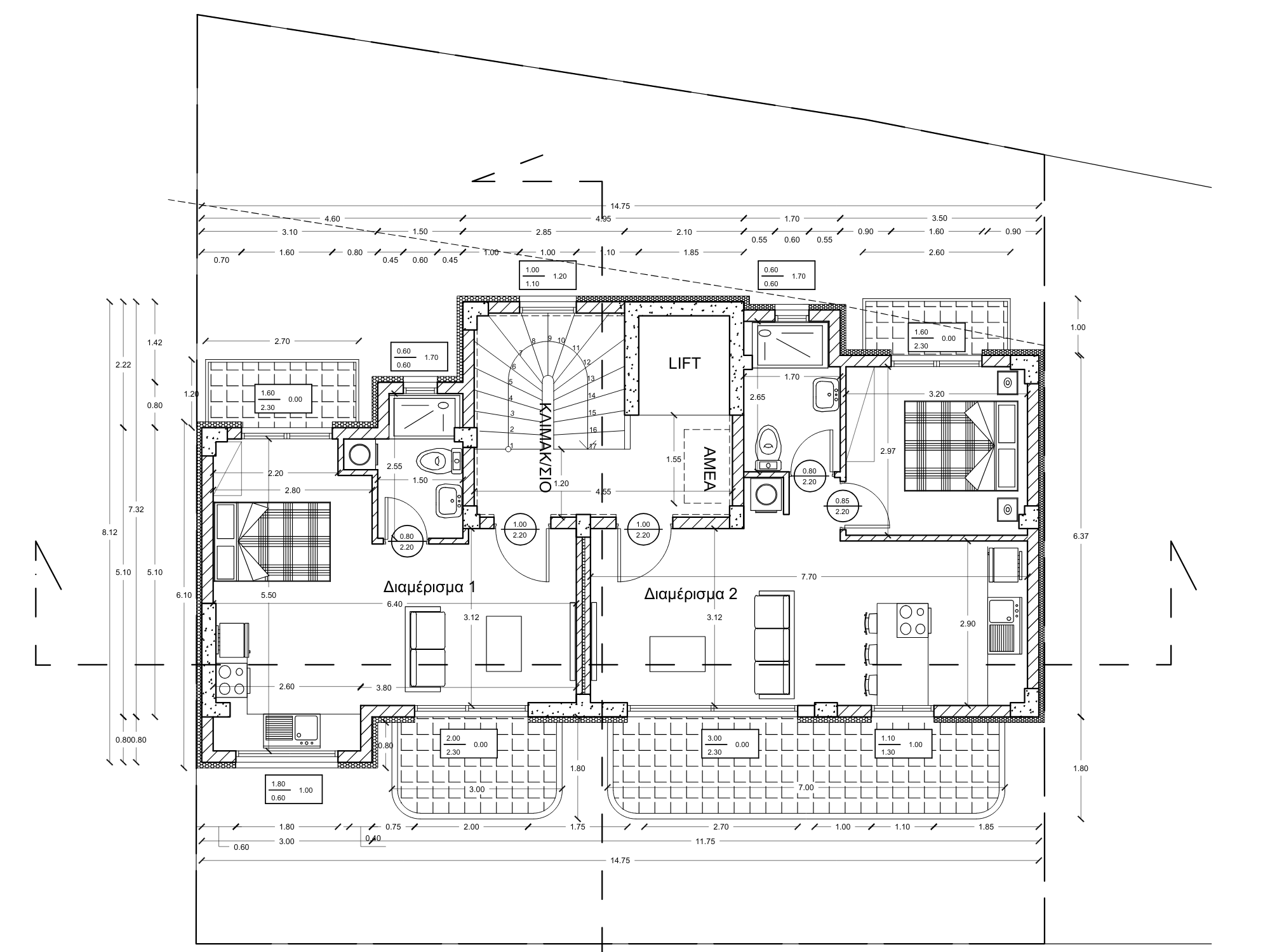
Πωλείται ευρύχωρο, διαμπερές διαμέρισμα 44,80 τ.μ. καθαρά (63 τ.μ. μικτά) στον 1ο όροφο, ιδανικό για ζευγάρια, νέους επαγγελματίες ή επενδυτές.
Το ακίνητο ανήκει σε σύγχρονο τριώροφο κτίριο υψηλών προδιαγραφών, με έμφαση στην ενεργειακή αποδοτικότητα, την άνεση και την αισθητική, βρίσκεται στην οδό Γεωργίου Παπανδρέου 10, Περιοχή Καλλιθέα Αλεξανδρούπολης.
Με εύκολη πρόσβαση σε κέντρο και παραλία, ο νότιος προσανατολισμός εξασφαλίζει φυσικό φωτισμό και η τοποθεσία πανοραμική θέα.
Καθαρό Εμβαδό: 44,8τ.μ
Μικτό Εμβαδό: 63τ.μ
Μπαλκόνια: Μεγάλα με πανοραμική θέα.
Θέρμανση/Ψύξη: Αντλία Θερμότητας με fan coil.
Ζεστό Νερό Χρήσης: Ηλιακός θερμοσίφωνας Υψηλής Απόδοσης + Αντία Θερμότητας.
Ηχομόνωση:
1. Στις μεσοτοιχίες διαμερισμάτων.
2. Μεταξύ ορόφων.
Εξωτερική Θερμομόνωση: 10cm.
Κουφώματα: PVC Με Τριπλά Ενεργειακά Τζάμια: Uf=0.95 W/m²K
Ασανσέρ: Μηχανικό με Στάση στο Υπόγειο + Απεγκλωβισμό
Αποθήκη: 12 τ.μ με απευθείας πρόσβαση από το ασανσέρ.
Το κτίριο διαθέτει 5 διαμερίσματα υψηλών προδιαγραφών με έμφαση στην ποιότητα την ενεργειακή απόδοση και την άνεση διαβίωσης! Βρίσκεται επί της οδού Γεωργίου Παπανδρέου 10 σε υπερυψωμένο σημείο με Νότιο Προσανατολισμό στην Περιοχή Καλλιθέα Αλεξανδρούπολης.
360° Εικονική περιήγηση
Λεπτομέρειες
Updated on February 7, 2026 at 12:40 pm-
Μέγεθος ακινήτου 63 τ.μ
-
Υπνοδωμάτιο 1
-
Μπάνιο 1
-
Ετος κατασκευής 2026
-
Τύπος Ακινήτου Διαμέρισμα
-
Κουζίνες 1
-
Όροφος 1
-
Προσανατολισμός Νότιος
-
Μέσο Θέρμανσης Αντλία Θερμότητας
-
Ηλιακός θερμοσίφωνας Ναι
-
Ασανσέρ Ναι
-
Αποθήκη 12τ.μ
-
Εμβαδό μπαλκονιών 15
-
Σύστημα θέρμανσης Αντλία Θερμότητας
Διεύθυνση
Open on Google Maps-
Διεύθυνση: Γεωργίου Παπανδρέου 10
-
Πόλη: Αλεξανδρούπολη
-
Νομός: Έβρος
-
Zip / Τ.Κ.: 681 00
-
Περιοχή: Καλλιθέα
Ενεργειακή κλάση
-
Ενεργειακή κατηγορία: A
- A+
- | Ενεργειακή κλάση AA
- B
- Γ
- Δ
- E





